Gambar Kerja Instalasi Listrik Rumah Tipe 45 6,25X19,5
Gambar Kerja Instalasi Listrik Rumah Tipe 45 6,25X19,5
Lihat lainnya di bawah ini.
- Gambar kerja tampak depan dan samping kiri rumah tipe 45 6,25x19,5
- Gambar kerja tampak depan samping kanan rumah tipe 45 6,25x19,5
- Gambar kerja denah rumah tipe 45 6,25x19,5
- Gambar kerja potongan A-A dan B-B rumah tipe 45 6,25x19,5
- Gambar kerja potongan C-C rumah tipe 45 6,25x19,5
- Gambar kerja pondasi, sloof, dan kolom rumah tipe 45 6,25x19,5
- Gambar kerja balok rumah tipe 45 6,25x19,5
- Gambar kerja atap rumah tipe 45 6,25x19,5
- Gambar kerja detail pondasi rumah tipe 45 6,25x19,5
- Gambar kerja penulangan sloof, kolom, balok rumah tipe 45 6,25x19,5
- Gambar kerja detail rangka atap rumah tipe 45 6,25x19,5
- Gambar kerja pola lantai tipe 45 6,25x19,5
- Gambar kerja plafon rumah tipe 45 6,25x19,5
- Gambar kerja penempatan kusen rumah tipe 45 6,25x19,5
- Gambar kerja detail kusen pintu rumah tipe 45 6,25x19,5
- Gambar kerja kusen jendela rumah tipe 45 6,25x19,5
- Gambar kerja detail rangka plafon rumah tipe 45 6,25x19,5
- Gambar kerja instalasi air bersih rumah tipe 45 6,25x19,5
- Gambar kerja instalasi air kotor rumah tipe 45 6,25x19,5
- Gambar kerja detail kamar mandi rumah tipe 45 6,25x19,5
- Gambar kerja detail tandon tanam rumah tipe 45 6,25x19,5
- Gambar kerja detail septictank rumah tipe 45 6,25x19,5
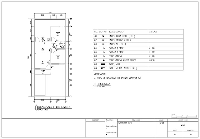
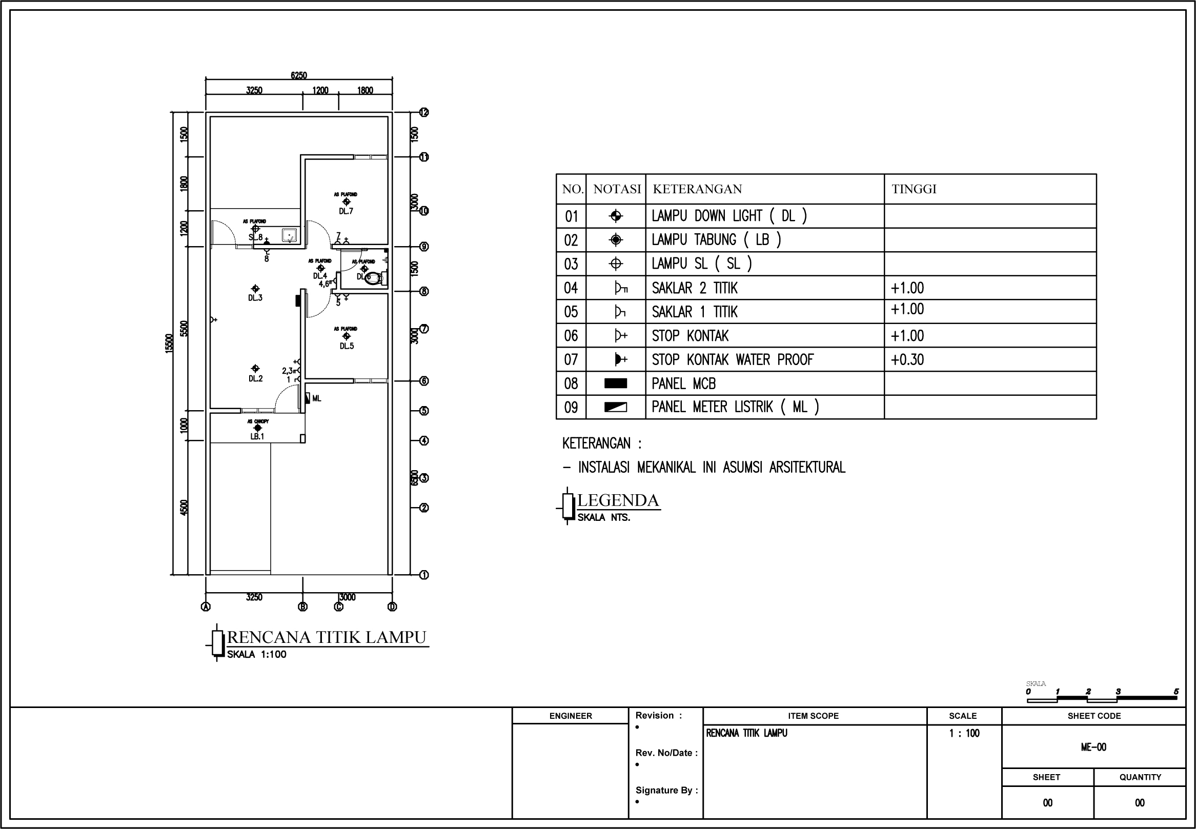
- Gambar kerja instalasi listrik rumah tipe 45 6,25x19,5
Terima kasih telah berkunjung.
Butuh Jasa desain rumah atau sejenisnya silakan klik di sini.
desain | arsitektur | interior | desain interior | desain ruang | rumah | denah | layout | gambar kerja

Comments
Post a Comment